Proposed
Location | Class | Floors |
---|---|---|
234 3rd Ave N | Apartments | 28 |
Units | Completion | Website |
---|---|---|
327 | TBD | - |
Location | Class | Floors |
---|---|---|
234 3rd Ave N | Apartments | 28 |
Units | Completion | Website |
---|---|---|
327 | TBD | - |
Contact - Terms of Use - Privacy Policy
© 2025 St. Pete Rising, LLC
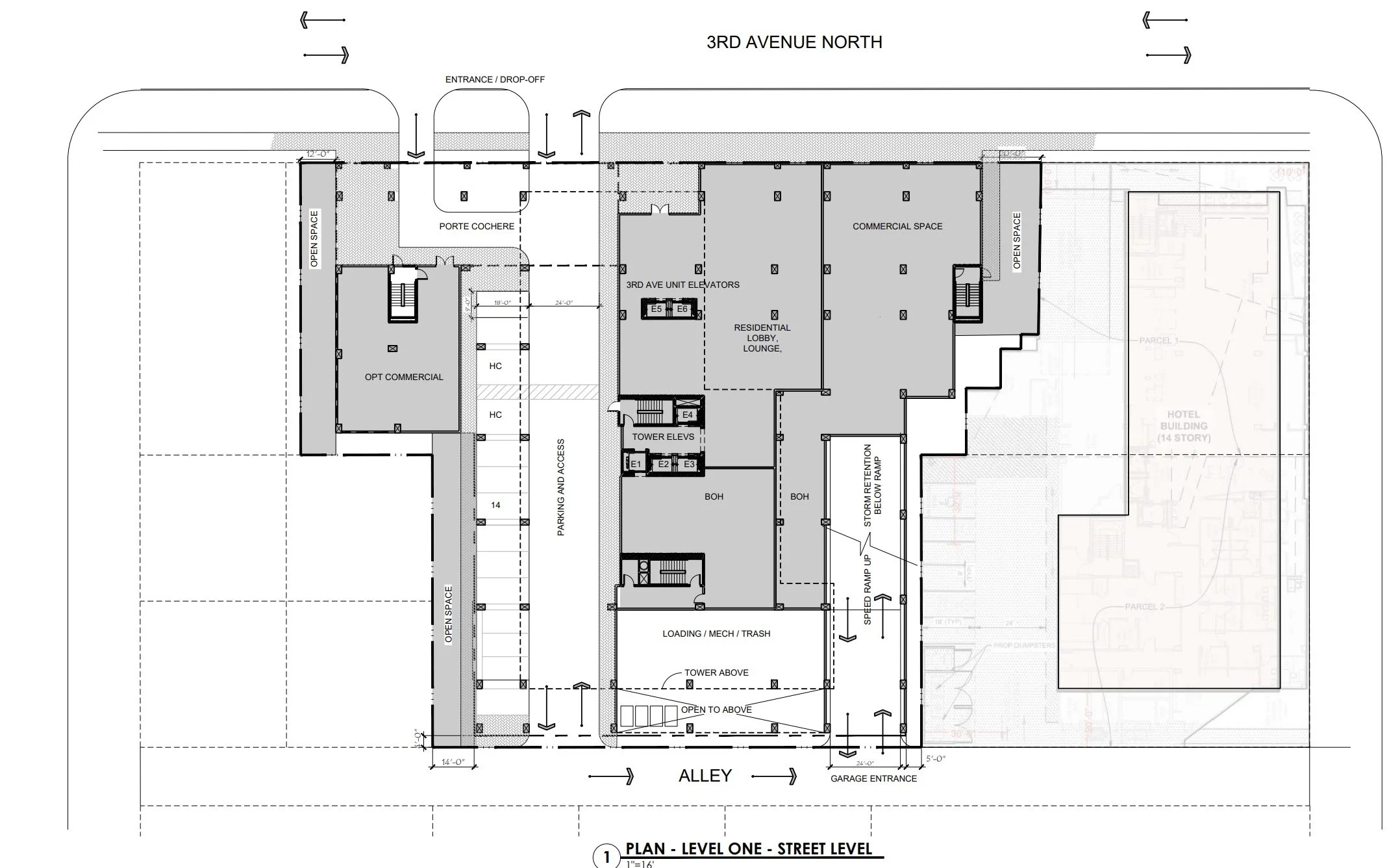
Plans will soon be filed with the City of St. Petersburg for a high-rise mixed-use development that will transform a 0.94-acre parcel in downtown St. Pete.
Ally MW, LLC has proposed a 28-story residential tower on the site of the Exchange Hotel, formerly Hotel Indigo, at 234 3rd Avenue North.