14-unit luxury condo-hotel Sunshine Club begins construction in Treasure Island
/
A six-story condo-hotel has broken ground in Treasure Island.
City officials and the Pinellas Beaches Chamber recently held a groundbreaking ceremony for the Sunshine Club, a 14-unit project planned for a 0.28-acre site at 12200 Gulf Boulevard.
Condo-hotels allow buyers to purchase individual units that can be used personally or placed into a nightly rental program.
“I think it’s going to just be a huge hit here in Treasure Island,” Treasure Island Vice Mayor Tammy Vasquez said during the event held last month.
“We are just looking forward to getting back to normal and getting our visitors back, and we’re super excited about it,” she added, referencing the area’s rebound after many buildings suffered damage from back-to-back hurricanes in 2024.
The project, which was conceptualized in 2022 and approved by the city the following year, is being built by local developer and contractor Bill Karns, who was brought in by the new ownership group to oversee development and construction.
The 14-unit condo hotel will be constructed on a 0.28-acre site at 12200 Gulf Boulevard in Treasure Island | COStar
“They came to me to help develop it and to be the general contractor, so I’m building the project and overseeing it for them,” Karns said in a conversation with St. Pete Rising.
The development is led by South Florida-based Pro Development USA, which purchased the property in August 2025 for $1.5 million.
The group acquired the land along with a full set of architectural plans originally designed by local architect Jack Bodziak.
The site previously contained two small residential buildings constructed in 1935 with a total of five vacant units. The structures did not have a historical designation and were demolished to make way for the new development.
Unlike many new projects along the barrier islands, Sunshine Club is not directly on the waterfront. Instead, the property sits among a mix of single-family homes and condominium buildings just steps from the beach.
the city of treasure island hosted a groundbreaking ceremony on february 10th | St. Pete Rising
“Vacationers come here for our sugar sand beaches and everything the area offers,” Karns said. “The property is about 200 feet from a public beach access, and guests won’t have to cross Gulf Boulevard to get there.”
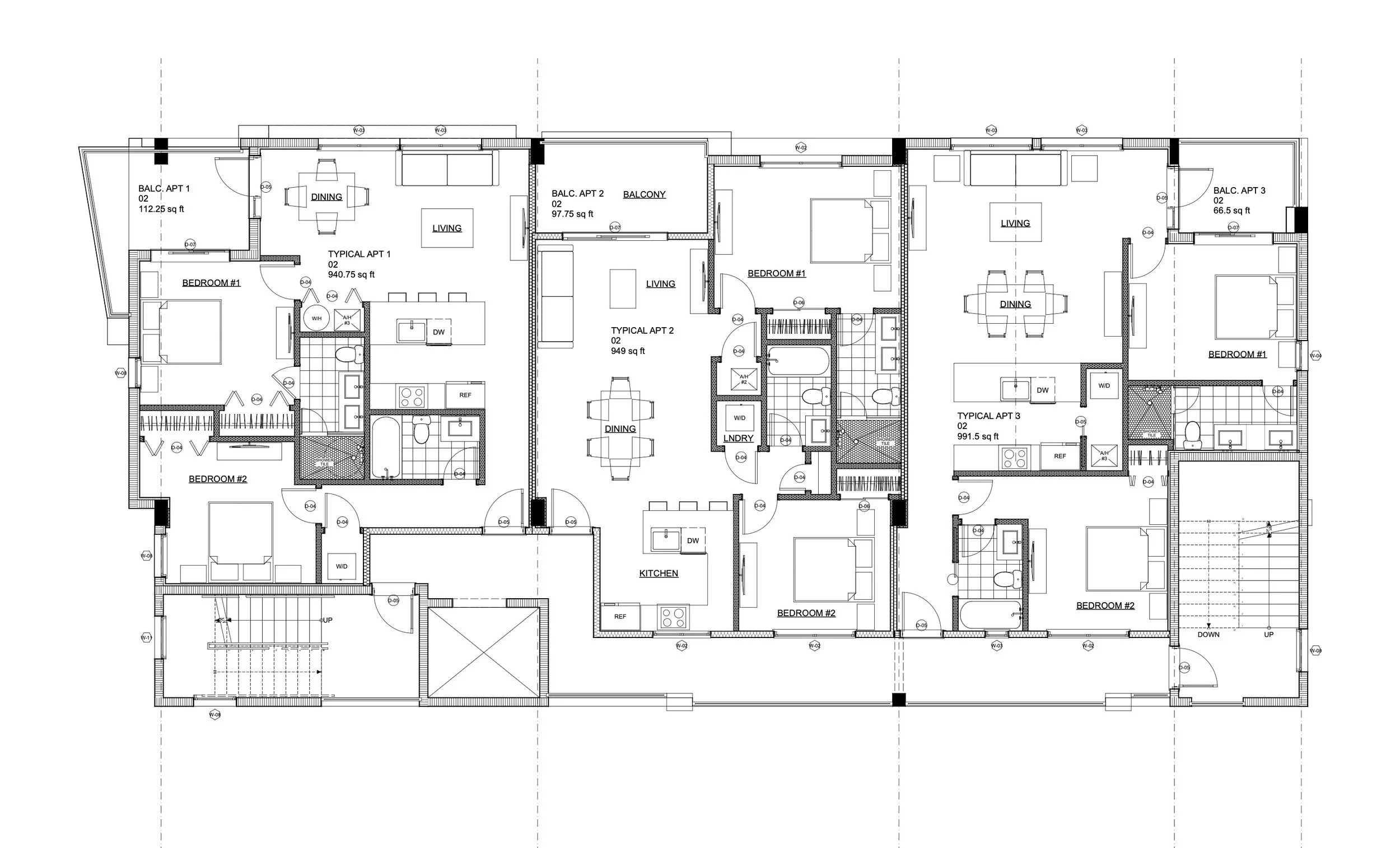
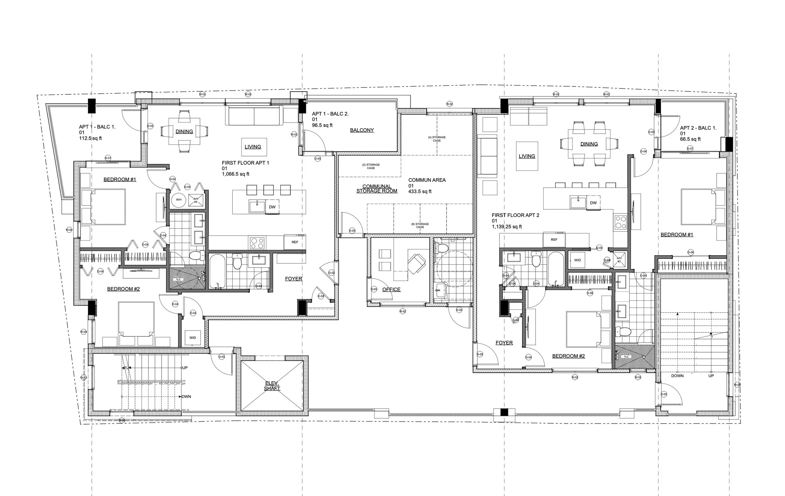
The six-story building will feature five levels of units above ground-floor parking. Plans call for 15 parking spaces along with bicycle parking.
All 14 units will feature two bedrooms, two bathrooms, and an outdoor terrace over roughly 1,000 square feet.
On the north side of the property, the property will include a fenced-in pool, spa, and deck area for guests.
Upper floors are expected to offer partial views of the Gulf.
Karns said the project will feature high-quality finishes designed to compete with other vacation properties in the area.
The development site falls within the city’s Resort High Facilities (RHF-50) zoning district, where condo-hotels are considered a transient lodging use rather than residential under the city’s code.
The district permits up to 50 units per acre, a maximum building height of 60 feet, and a floor area ratio (FAR) of 1.2.
Sunshine Club is designed to max out its density of 14 units on the 0.28-acre property, a height of 60 feet, and a floor area ratio of 1.19.
Structural engineer German Gonzalez LLC, working with Scott Martinez, completed the initial structural design for the project.
Sales for the units will be handled by Jeff Beggins with Century 21.
Prices are expected to start around $950,000, with pre-construction sales launching once construction progresses further and model units can be shown.
Karns estimates the building will take roughly 15 months to complete, putting an anticipated opening sometime in 2027.
For Pro Development USA, Sunshine Club represents the company’s first larger-scale residential development on the Pinellas beaches.
