Publix plans bigger store at Gateway Market Center on 9th Street North in St. Pete
/The Publix Super Market in the Gateway Market center at 7999 Dr M.L.K. Jr Street North | st. pete rising
One of St. Petersburg’s largest shopping centers is preparing for a major upgrade.
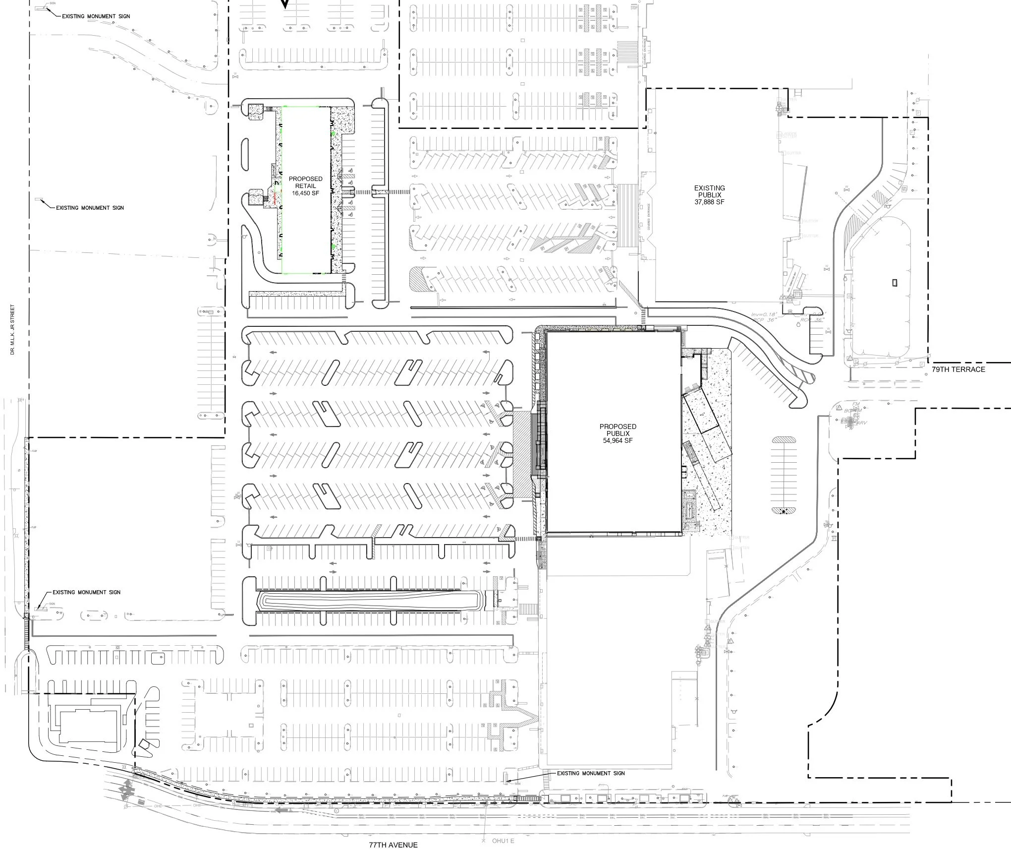
Gateway Market Center, located six miles north of downtown at 7751-8229 9th Street North, will soon break ground on a new Publix supermarket as part of a broader redevelopment effort led by InvenTrust Properties Inc.
The Illinois-based real estate investment trust, which owns and manages open-air shopping centers nationwide, plans to demolish the 60,450-square-foot Bealls, which recently closed, and replace it with a new 54,964-square-foot Publix, according to plans obtained by St. Pete Rising.
The store will be built adjacent to the existing 37,888-square-foot Publix, which has anchored the site for more than two decades.
The current Publix is expected to stay open during construction to avoid disrupting service, with operations likely shifting to the larger store once it is complete.
A portion of the Gateway Market Center at 7751-8229 9th Street North is expected to be redeveloped | KH Build LLC
In addition, InvenTrust plans to add a new 16,450-square-foot retail outparcel building behind CVS, creating additional space for future tenants.
Tampa-based KH Build LLC, affiliated with Tampa-based Kelner Homes, has been named general contractor for the project, which is currently in the permitting stage.
Publix’s connection to the property stretches back to 1963, when the Lakeland-based grocer opened a freestanding supermarket that predated the larger Gateway Mall by several years.
Developed by New York City–based Winston-Muss Corporation, the enclosed mall opened in 1968 with anchors Woolco and J. Byron, alongside retailers like Eckerd Drugs, Morrison’s Cafeteria, and Lerner Shops.
As shopping trends shifted, Gateway Mall fell into decline, eventually being redeveloped in the late 1990s as the open-air Gateway Market Center.
A site plan of the proposed changes to the Gateway Market Center, which include demolishing the existing Bealls and constructing a new 55,000-square-foot publix | inventrust properties
Publix replaced its original store with the current 37,888-square-foot location, which opened in 1999.
InvenTrust Properties has owned the 46.8-acre, 426,495-square-foot shopping center since 2010.
The grocer, which now operates more than 1,300 stores across the Southeast, is well known for modernizing its aging locations. In some cases, that means closing, demolishing, and rebuilding entirely new stores.
In St. Pete, Publix has followed this strategy multiple times at 4th Street North and 38th Avenue North in 2014, and it is currently redeveloping its site at 3900 66th Street North.
The former 60,450-square-foot Bealls space that will be demolished to make way for a new 55,000-square-foot publix | st. pete rising
When St. Pete Rising inquired about the redevelopment project, the local Publix management team said they were not aware of the future plans.
Gateway Market Center today features a mix of tenants, including Target, PetSmart, HomeGoods, Five Below, Miller’s Ale House, TJ Maxx, Shoe Carnival, Steak ’n Shake, Truist Bank, CVS, USPS, and Bath & Body Works, which is undergoing repairs.
Several vacancies remain, including an 11,940-square-foot space near Target and an 11,324-square-foot space next to PetSmart, temporarily filled by Spirit Halloween.
Meanwhile, construction is underway on a new Chase Bank at the corner of 77th Avenue North and Dr. Martin Luther King Jr. Street North. The 0.34-acre site, formerly home to a Burger King, was acquired by JP Morgan Chase for $1.55 million in July 2024.
an 11,324-square-foot space next to PetSmart is temporarily occupied by Spirit Halloween | St Pete Rising
