Revised plans proposed for retail village and five-story apartment building in the Grand Central District
/A newly proposed 60-unit apartment building planned alongside a 24,000-square-foot retail village and a 325-unit apartment community in the Grand Central District | FK Architecture
The development group behind a new live-work-play neighborhood in St. Pete’s Grand Central District is tweaking plans.
The previously approved mixed-use project called Whitney Village is currently under construction on 4.5 acres on the east side of the Jim & Heather Gills YMCA at 3200 1st Avenue South.
The pedestrian-centered development, featuring a retail village with 32,000 square feet of retail space and a 600-space parking garage, may now have a total of 385 apartments across the property.
Plans for a mixed-use redevelopment featuring hundreds of apartments and a retail village in St. Petersburg’s Grand Central District are being modified as construction continues on the project’s first phase.
Whitney Village will be constructed at the corner of 1st Avenue South and 31st Street in the Grand Central District of St. pete | Google Maps
When Whitney Village was first announced in 2024, plans called for 380 apartments, a 32,000-square-foot retail village, and a 600-space parking garage at 3200 1st Avenue South, directly east of the existing Jim & Heather Gills YMCA.
Now, St. Pete-based real estate firm Blake Investment Partners are requesting approval of a site plan modification that would increase the total number of apartments to 385.
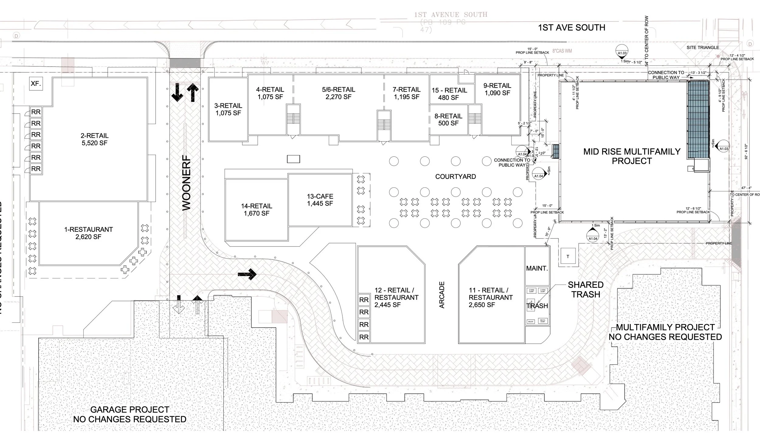
The increase is tied to changes within the retail village portion of the project, which sits north of The Henry at Whitney Village, a five-story, 325-unit apartment community currently under construction.
Under the revised plan, 60 apartments would be built as part of the retail village itself, compared to the 55 units previously proposed.
Side-by-side comparison of the original and revised site plans for Whitney Village | George F. Young
Those 60 units would include a mix of one- and two-bedroom apartments and would be housed in a new mid-rise building called The Vessel at Whitney Village on the northeast corner of the site.
Earlier plans called for apartments to be located above individual retail buildings within the retail village.
Even with the additional apartments, the project would remain well below the 688 units allowed under city code.
The request is scheduled to go before the St. Petersburg Development Review Commission on February 4th.
Site plan showing the retail village, where a new mid-rise apartment building is proposed at the northeast corner | FK Architects
At the same time, the overall amount of retail space is being reduced.
The original plan included 32,000 square feet of retail, while the revised plan contains 24,000 square feet.
The Henry at Whitney Village, which is being developed by national developed Greystar in partnership with Griffin Capital, will deliver 325 apartments ranging from studios to three-bedroom units, along with a mix of indoor and outdoor amenities. Construction is expected to be completed in 2027.
Residents will receive memberships to the adjacent YMCA as part of the development’s live-work-play concept.
Design work for Whitney Village is being led by FK Architecture, with engineering by George F. Young Inc.
North and East Elevations of the retail village and the newly proposed 60-unit apartment building called The Vessel at Whitney Village | FK Architects
