Chipotle to replace Krispy Kreme on 4th Street North in St. Pete
/The Krispy kreme at 9100 4th Street North | Google Streetview
After more than a decade of serving hot doughnuts on 4th Street, St. Petersburg’s only Krispy Kreme location is set to close.
Chipotle Mexican Grill, the fast-casual chain known for burritos and bowls, will replace the Krispy Kreme at 9100 4th Street North.
According to a newly filed application with the Southwest Florida Water Management District, remodeling work on the 2,430-square-foot building is expected to begin in March and be completed by September.
The project is being led by Mississippi-based Streamline Development Partners, a commercial real estate group that has developed multiple Chipotle locations nationwide. The firm is working alongside Vero Beach-based design and engineering company Quick Concepts Group LLC.
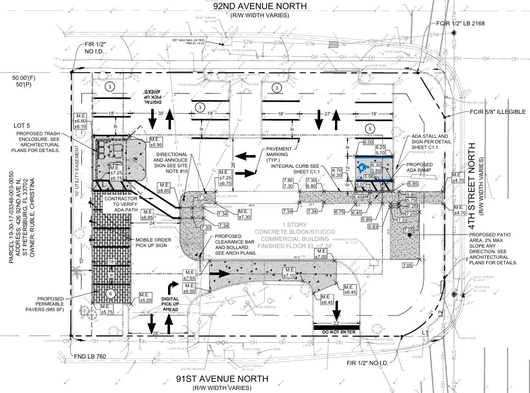
site plan for the new chipotlane, which will include parking for mobile order pick-ups | streamline development partners
The closure marks the end of an era for Krispy Kreme in St. Petersburg. The doughnut chain opened the freestanding 4th Street North location in 2013. Prior to becoming a Krispy Kreme, the building was home to Ragin’ Grill, and before that operated as YaYa’s Flame Broiled Chicken.
Before opening on 4th Street, Krispy Kreme operated for decades at 3441 Central Avenue until that property was sold and redeveloped into Fray’s Donuts in the late 1990s.
The closure comes as Krispy Kreme scales back underperforming locations nationwide to improve profitability.
In 2025, the company exited roughly 3,500 locations, including ending a strategic partnership with McDonald’s at about 2,400 stores.
Krispy Kreme at 3441 Central Avenue in 1965 | St. PeteRSBURG Museum of History
The conversion reflects Chipotle’s broader strategy of repurposing existing buildings as it expands. In late 2020, the company opened a Chipotle in Maine inside a former Krispy Kreme, completing a $350,000 renovation that included a drive-thru.
The new St. Petersburg location will feature a Chipotlane, Chipotle’s drive-thru pickup lane designed exclusively for digital orders.
First introduced in 2018, Chipotlanes were created to streamline service for customers who order and pay ahead of time.
Chipotlane 3901 34th Street South in the Skyway Marina District | St. Pete Rising
The first Chipotlane in St. Pete opened last year at 3901 34th Street South in the Skyway Marina District. Another Chipotlane is planned for Largo at 13677 Walsingham Road in a former KFC building.
In addition to the Chipotlane location, St. Petersburg has three standard Chipotle locations, including two on 4th Street at 3540 4th Street North and 780 4th Street North, along with one near Tyrone Mall at 1418 66th Street North.
Chipotle operates more than 3,700 restaurants globally and plans to open between 350 and 370 new locations in 2026.
