330-unit mixed-income apartments break ground on Lake Maggiore in south St. Pete
/In attendance at the groundbreaking ceremony was (from left to right) Chris Steinocher, CEO of St Petersburg Area Chamber of Commerce; Sam Palmer, EVP of Asset Management and Development at Stoneweg US; Gina Driscoll, St. Petersburg City Council Member; Patrick Richard, CEO of Stoneweg US; James Corbett, St. Petersburg Neighborhood Affairs Administrator; Mark Rios, Director of Development at Stoneweg US; Gary Huggins, EVP at NDC Construction Company
A ceremonial groundbreaking was held last Friday for the Lake Maggiore Apartments, a 330-unit mixed-income apartment community coming to 6th Street South, just east of Lake Maggiore in south St. Pete.
The project was first announced in October 2021 and is being developed by Stoneweg US, a St. Pete-based investment firm specializing in multifamily acquisitions and developments. The group purchased the 14.6-acre parcel, which was previously a mobile home park, in April 2021 for $6.4 million.
"Lake Maggiore is a special project, conceptualized and designed with the community's and future residents' needs in mind,” said Patrick Richard, CEO, Stoneweg US. “We are building a serene and sustainable apartment complex with premium amenities and scenic landscaping; a quality product that will also offer rents that are achievable for the workforce of our City."
The Lake Maggiore Apartments will have nine residential buildings varying between two and four stories. At the center of the project will be a larger four-story building with 136 units. RENDERING BY BOLD LINE DESIGN.
The apartment development is one of the largest ground-up multifamily communities proposed for south St. Petersburg in decades – marking a turning point for the area.
In October 2021, the Community Planning and Preservation Commission (CPPC) approved a request to rezone 11 of the 14.6 acres allowing 24 units per acre to be constructed (originally 15 units per acre). Stoneweg US also utilized the City’s Workforce Housing Density bonus of 6 units per acre for a total density of 30 units per acre.
St. Pete’s Development Review Commission unanimously approved the development in March.
The clubhouse at the Lake Maggiore Apartments. RENDERING BY BOLD LINE DESIGN.
Originally, the community was expected to include around 100 units of workforce housing, however that number has slightly decreased to 66 units. The workforce units will cater to households making between 80% to 120% of Area Median Income (AMI). The decrease was primarily due to fluctuating market conditions.
Lake Maggiore Apartments will utilize sustainable practices like having energy efficient lighting throughout the property, Energy star appliances, solar panels at the clubhouse, electrical vehicle charging stations, low flow plumbing fixtures, a compost area, and a recycling program.
“We remain committed to building workforce housing projects in St. Petersburg and nationally as we have broadened our overall development strategy to include markets outside of the state of Florida (as it was originally launched),” said Sharmane Bailey, Associate Director of Corporate Communications, Stoneweg US. “We’re extremely optimistic about continuing to make a difference for the workforce housing sector.”
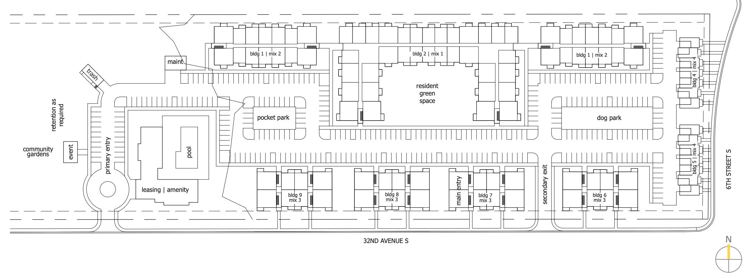
The Lake Maggiore Apartments will be built on a 14.6 acre site fronting 6th Street South, just east of Lake Maggiore in south St. Pete
The tagline for the property will be “Serene and Sustainable.” The community will consist of seven garden-style apartment buildings, two townhome-style buildings, a pool, outdoor amenity area, a club house, and leasing office.
Community greenspace will include a dog park and community gardens planned for the west side of the property. The community will also include 358 parking spaces – above the 293 required.
Construction, led by NDC Construction, will officially kickoff in the first or second week of May and expected delivery of the project is scheduled for Q1 2024.
Bold Line Design is the architect, Craig Taraszki of Johnson Pope is the land use attorney for the project, and B2 Communications is working with Stoneweg US on public relations initiatives.
Site plan for the Lake Maggiore Apartments
