Aldi to replace Winn-Dixie on 4th Street North in St. Pete
/The Winn Dixie at 11100 4th Street North will close on August 3rd after 35 years in business | loopnet
A major shakeup is coming to one of St. Pete’s long-standing grocery stores.
After serving the community for 35 years, the Winn-Dixie at 11100 4th Street North in the Bayview Shopping Plaza is set to close on August 3rd and undergo a $1.7 million renovation to become an Aldi.
The conversion is part of the German-based discount grocery chain’s continued expansion across Florida and the U.S., following its March 2024 acquisition of Southeastern Grocers and the rollout of new Aldi stores in former Winn-Dixie locations.
Aldi plan to invest more than $9 billion over the next five years to add nearly 330 stores in the U.S. by the end of 2028.
the new Aldi will join other tenants in the 81,000-square-foot Bayview Shopping Plaza, including Skyway Cafe, Paul’s Chicago Pizza, and Funky Sweets | loopnet
In September of last year, St. Pete Rising reported that the Winn-Dixie at 3327 Dr. MLK Jr. Street North would be converted into an Aldi. The store has since closed and is now undergoing renovations for the transition.
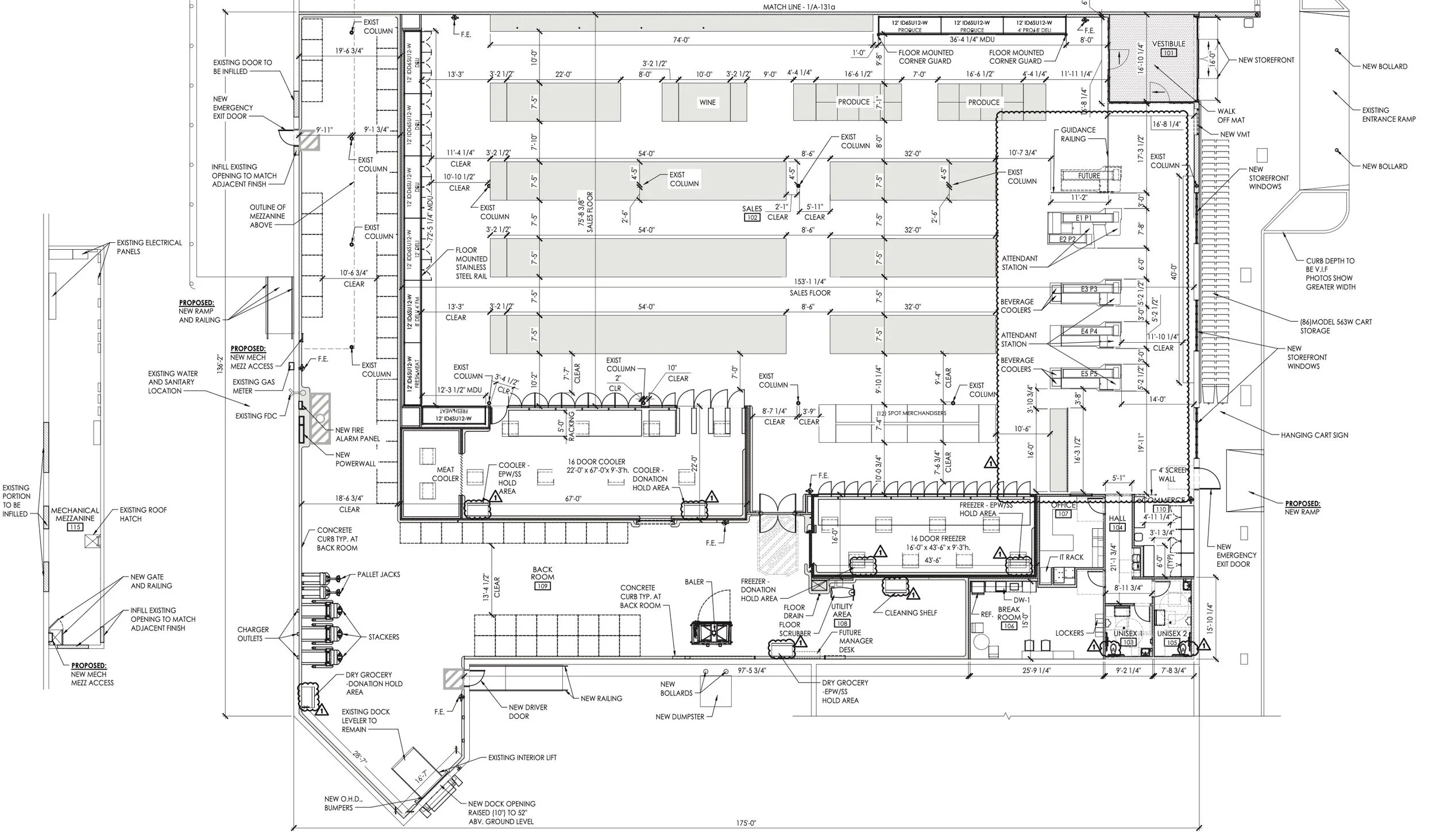
Aldi will occupy 22,191 square feet on the southern end of the 46,000-square-foot Winn-Dixie. The remaining 24,111 square feet will be reserved for a future tenant that has not yet been announced.
Winn-Dixie Wine & Spirits, located adjacent to the store, will remain open.
The new Aldi on 4th Street North will be one of several locations in the area, including stores on 34th Street North, 22nd Avenue North, 34th Street South, and 66th Street North in Pinellas Park.
Aldi will occupy 22,191 square feet on the southern end of the 46,000-square-foot Winn-Dixie | aldi
Once open, the new Aldi will join other tenants in the 81,000-square-foot Bayview Shopping Plaza, including local favorites like Skyway Cafe, Paul’s Chicago Pizza, and Funky Sweets.
The shopping center was last sold in 2022 for $ 7.25 million, when Tampa-based Hachem Investments sold it to Millan Enterprises, a Tennessee-based firm.
An official opening date for Aldi has not yet been announced, but the chain is known for celebrating new store openings with giveaways like gift cards, coupons, and Aldi-branded merchandise for early shoppers. So, stay tuned for updates as opening day gets closer.
Site plan for Aldi’s new store at 11100 4th STreet North | aldi
