Lofts on 1300 to bring luxury apartments to Dr. Martin Luther King Jr. Street North
/A rendering of lofts on 1300, a three-story apartment building expected to break ground soon on Dr. Martin Luther King Jr. Street North | g2 Design
Construction is about to begin on a new boutique apartment building just north of downtown St. Pete.
Located at 1300 Dr. Martin Luther King Jr. Street North, Lofts on 1300 will bring nine new luxury apartments to the edge of the Euclid St. Pauls neighborhood.
The 0.37-acre site, which was previous home to two single-family residences, is zoned CRT-1 (Corridor Residential Traditional-1), which allows for a mix of residential and commercial uses.
“The beauty of this project is that it will be so close to downtown but still in the heart of the Crescent Lake and Euclid St. Pauls neighborhoods,” developer and owner David Hofstadter told St. Pete Rising. “I saw an opportunity for multifamily when I purchased the 100-year-old house on the property.”
Hofstadter bought the property in April 2024 for $848,000.
Lofts on 1300, a nine-unit apartment building, will be built at 1300 Dr. Martin Luther King Jr. Street North | Google maps
After studying the zoning code, Hofstadter realized he could build a multifamily project without needing variances.
“The zoning allows multifamily with limitations that I could work within, building nice-sized units,” he said. “So, I approached the homeowner next door and bought her house too.”
The new three-story building will stand 36 feet tall and include two-bedroom, two-and-a-half-bath apartments ranging from 1,500 to 1,700 square feet.
Four residences will occupy the ground floor, while five two-level loft apartments will be located above.
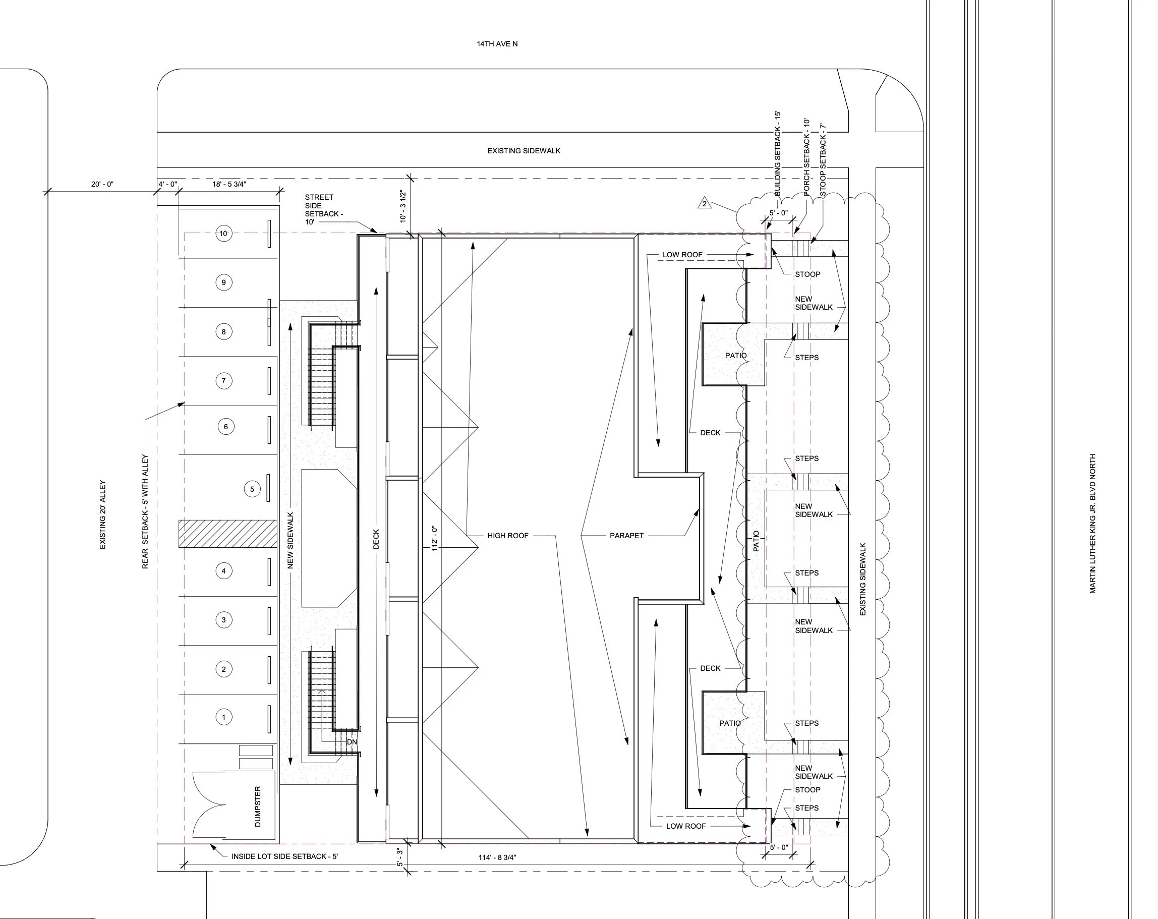
Site plan for Lofts on 1300 | G2 Design
Each of the four first-floor apartments will include a small office with its own entrance and half bath, allowing residents to operate a business directly from their unit.
The apartments will have an open-concept layout, high-end kitchens with quartz countertops, and in-unit laundry.
Upper-level homes will include balconies, while ground-floor units will have private patios.
Residents will have access to a covered surface lot with ten parking spaces plus bicycle parking. Additional street parking is available along 14th Avenue North.
“For me, this project is personal. My family and I would vacation in St. Pete and at the beaches. This project will appeal to families who want to live and work here,” Hofstadter said.
Construction is expected to take 14 to 18 months, with rental rates starting around $3,500 per month.
The development team includes local firms G2 Design, Hunter Design and Consulting, Howard Civil Engineering, and Tampa-based HSI Engineering LLC.
East and west elevations for lofts on 1300, a three-story apartment building proposed just north of downtown St. Pete | G2 Design
