144-unit affordable housing community Olea on 126 breaks ground in Largo
/Olea on 126 will contain 144 affordable apartments for lower-income residents in Largo | Lincoln Avenue Communities
A new affordable housing community in Largo will bring 144 apartments to a vacant 4.9-acre site, providing much-needed homes for lower-income residents.
Last Tuesday, California-based Lincoln Avenue Communities joined City of Largo officials to celebrate the groundbreaking of Olea on 126.
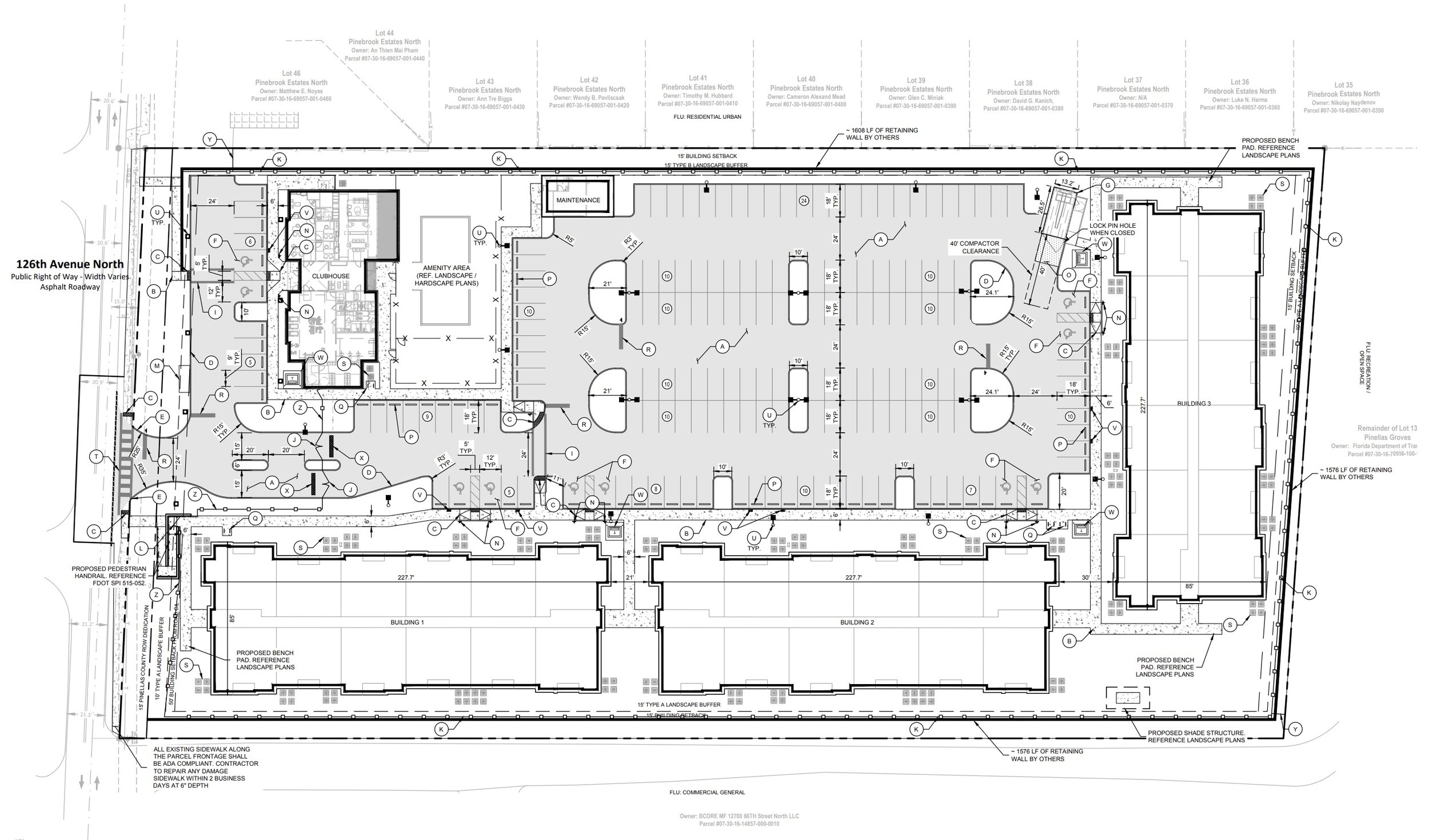
The $54.6 million project, located at 6727 126th Avenue North, will feature two-, three-, and four-bedroom apartments across three four-story, garden-style buildings.
Of the 144 apartments, 35 will be reserved for households earning up to 40% of the Area Median Income (AMI), 72 units for households earning up to 60% of AMI, and 38 units for households earning up to 80% of AMI.
Residents will have access to a clubhouse, outdoor pool, playground, and 174 parking spaces.
Olea on 126 will be located at 6727 126th Avenue North, behind Charleston on 66th Apartment community | Google Maps
Instead of a traditional retention pond, the site will use an underground stormwater system intended to reduce flooding while preserving land for housing and parking.
Construction is expected to be completed in June 2027.
Lincoln Avenue Communities purchased the property for $3.75 million in May 2025.
The site is zoned Industrial Limited (IL), which does not permit residential development by right.
However, the developer utilized Florida’s Live Local Act (SB 102), a statewide housing initiative passed in 2023 that allows residential development on commercially zoned properties if at least 40% of units are reserved for households earning up to 120% of AMI.
Summit Contracting Group broke ground on the 144-unit affordable apartment community last week | Summit Contracting Group
The project is primarily financed through $22.18 million in tax credit equity.
In 2025, the Pinellas County Board of County Commissioners approved $7.92 million in funding from Penny for Pinellas, a voter-approved one-cent sales tax. Under the funding agreement, the apartments must remain affordable for at least 30 years.
The development team consists of Kimley Horn as engineer, Group 4 Design as architect, and Summit Contracting Group as general contractor.
The project marks Lincoln Avenue Communities’ first project in Pinellas County. The firm currently has affordable housing communities in Bradenton, Orlando, Miami-Dade County and other markets across Florida.
Site Plan for Olea on 126 | Lincoln Avenue Communities
