15-story apartment buildings on 1st Avenue North top out in downtown St. Pete
/A rendering of the VIV apartments at 1000 1st avenue north | belpointe
Reaching a height of 150 feet, local general contractor JE Dunn Construction has topped out the 15-story Viv apartments in St. Pete’s EDGE District.
“Today’s milestone recognizes the collaborative efforts of the entire project team in bringing Viv to life,” said Dan Frazier, project director of Tampa-based JE Dunn Construction. “We couldn’t be more excited to be part of such a significant development in St. Pete’s EDGE District.”
Viv is being developed by Belpointe OZ on a 1.6-acre site at 1000 1st Avenue North near MLK Street | GOOGLE MAPS
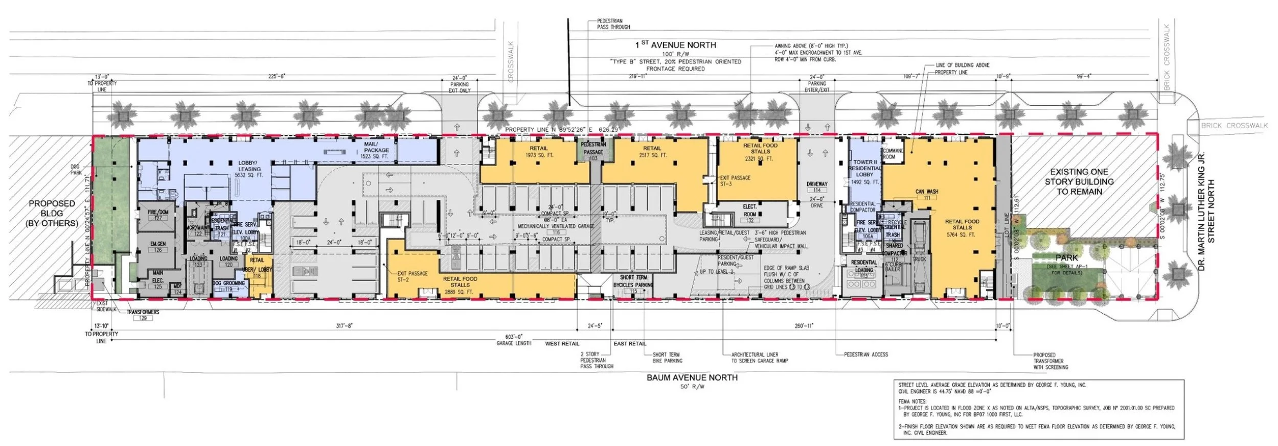
Viv is being developed by Belpointe OZ on a 1.6-acre site at 1000 1st Avenue North near MLK Street. The development includes a pair of 15-story towers with 269 market-rate apartments consisting of studio, one, two, and three-bedroom units, and a 355-space, four-story parking garage.
The ground floor will consist of 15,500 square feet of commercial space, residential lobbies, leasing office, back of house facilities, and parking. Floors two through four will include additional parking. Residential units will occupy floors five through 15. The 15th floor will also include roof top amenities.
Amenities throughout the property will include a clubroom, a fitness center, a courtyard with a swimming pool, and co-working space.
Leasing rates for the apartments have not been announced.
The project was first announced in 2021 and was approved in December 2022 before breaking ground in June 2023.
Prior to its approval, developer Belpointe OZ was praised by the EDGE District Business Association for its willingness to make changes and improvements to the district, most significantly along Baum Avenue.
THE SITE PLAN SHOWS THE RETAIL SPACE AND ENTRANCE TO THE PARKING GARAGE | BELPOINTE OZ
The development includes multiple pedestrian-only corridors that provide access from Baum Avenue to 1st Avenue North along with a pocket park with shade trees and outdoor seating on the corner of Baum Avenue and Dr. MLK Jr. Street.
“Our goal is to realize Belpointe OZ’s vision in a way that will contribute to the overall growth and development of the thriving St. Pete community. This milestone puts us one step closer to achieving our goal,” said Frazier.
MSA Architects serves as the design firm on the project.
Completion on the Viv apartments at 1000 1st Avenue North in St. Petersburg is set for 2025.
