Five affordable homes proposed for city-owned land on 18th Avenue South
/Bright Community Trust has submitted an unsolicited proposal to the City of St. Petersburg to develop four city-owned lots on 18th Avenue South into affordable cottage-style homes | Google Maps
An unsolicited proposal submitted to the City of St. Pete could bring a small cluster of permanently affordable homes to a vacant site in south St. Pete.
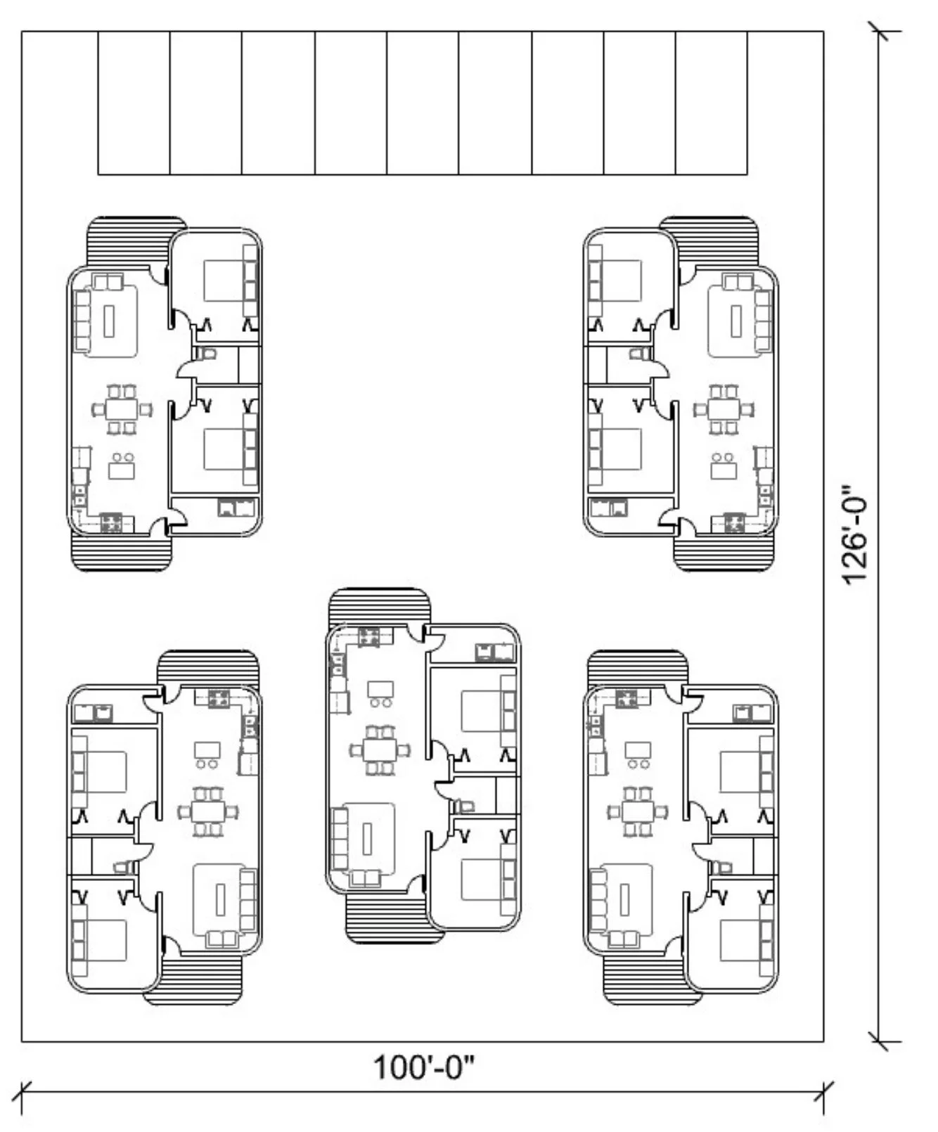
Bright Community Trust is requesting the donation of four city-owned parcels at 2013 18th Avenue South, where it plans to develop five cottage-style homes targeted to income-restricted buyers.
Each home would include two bedrooms, one bathroom, and roughly 900 square feet of living space.
Plans also call for a shared green space, nine parking spaces, and individual lot configurations that would allow each home to function as its own property.
The city’s willingness to consider the unsolicited proposal has triggered a formal Notice of Intent to Dispose of City-Owned Real Estate, which was published to the city’s website last week.
That notice opens the door for other developers or nonprofits to submit competing proposals for the property.
Interested parties have until Friday, May 22nd at 12 p.m. to submit an alternative proposal for the lease, purchase, or development of the site.
Bright Community Trust’s proposal comes as redevelopment picks up along 18th Avenue South, with The Grove Townhomes now open, Pelican Place set to add 40 townhomes, and Tangerine Plaza planned for 186 affordable apartments | Google Maps
Following the deadline, the mayor is expected to recommend a proposal to City Council for final approval.
If the city accepts Bright Community Trust’s offer, the project would follow a model the organization has used in partnership with the city for years: placing the land into a community land trust while selling only the homes themselves.
Under that structure, the land remains owned by the trust and is leased to homeowners through a 99-year renewable ground lease.
This approach helps keep prices lower upfront and ensures long-term affordability, even as homes change hands over time.
In this case, buyers would be required to meet income limits set at 80% of the Area Median Income, as defined annually by the U.S. Department of Housing and Urban Development (HUD). For a two-person household, that limit is currently set at $66,800.
Bright Community Trust has proposed to build five cottage-style homes on vacant city-owned lots in south St. Pete | Bright Community Trust
Resale restrictions built into the ground lease would keep future buyers within similar income ranges, which would help preserve affordability for decades.
Community land trusts, developed in the late 1960s, started to regain popularity after the 2008 housing crash cities looked for ways to create homeownership opportunities without losing affordability over time.
By separating land ownership from the home itself, the model avoids the typical market pressures that can quickly push prices out of reach in growing neighborhoods.
Bright Community Trust has delivered hundreds of homes through its land trust model, including several in St. Pete.
Late last year, the organization submitted an unsolicited proposal to the City of St. Pete to develop two single-family homes at 974 23rd Avenue South and 835 Queensboro Avenue South. The city ultimately accepted that proposal, and those homes are expected to be delivered by the end of this year.
The nonprofit typically builds homes at a cost of around $250,000, helping keep purchase prices within reach for qualified buyers.
Bright Community Trust has proposed to build five cottage-style homes on vacant city-owned lots in south St. Pete | Bright Community Trust
Bright Community Trust’s proposal comes at a time when 18th Avenue South is seeing steady wave of new development.
The long-awaited redevelopment of the city-owned Tangerine Plaza remains in progress. The selected development team is working toward a plan that includes 186 affordable housing units and the return of a fresh food option to the site for the first time since 2017.
Directly across from Tangerine Plaza, Habitat for Humanity is currently building Pelican Place, a 40-unit townhome community at 2100 18th Avenue South.
Just down the street, Habitat recently completed The Grove, an 11-unit townhome development at 1805 18th Avenue South.
New neighborhood businesses are beginning to pop up along the corridor, including a new coffee shop, The Morning Pour, which opened in January at 1701 18th Avenue South.
Meanwhile, further east, the City of St. Petersburg is planning a $51 million redevelopment of the Enoch D. Davis Center and the James Weldon Johnson Community Library at 1111 18th Avenue South.
