Six-story Marriott hotel planned for Madeira Beach tweaked after city feedback
/this Marriott Tribute hotel is slated to open on madeira Beach by 2028 | Place Architecture
New renderings offer a more detailed and colorful look at a new boutique hotel planned for Madeira Beach.
Local developer Bill Karns, who is also leading the Madeira Beach Town Center project, has partnered with Marcus Winters, owner of Caddy’s, to propose a six-story, 87-key hotel at John’s Pass Village and Boardwalk.
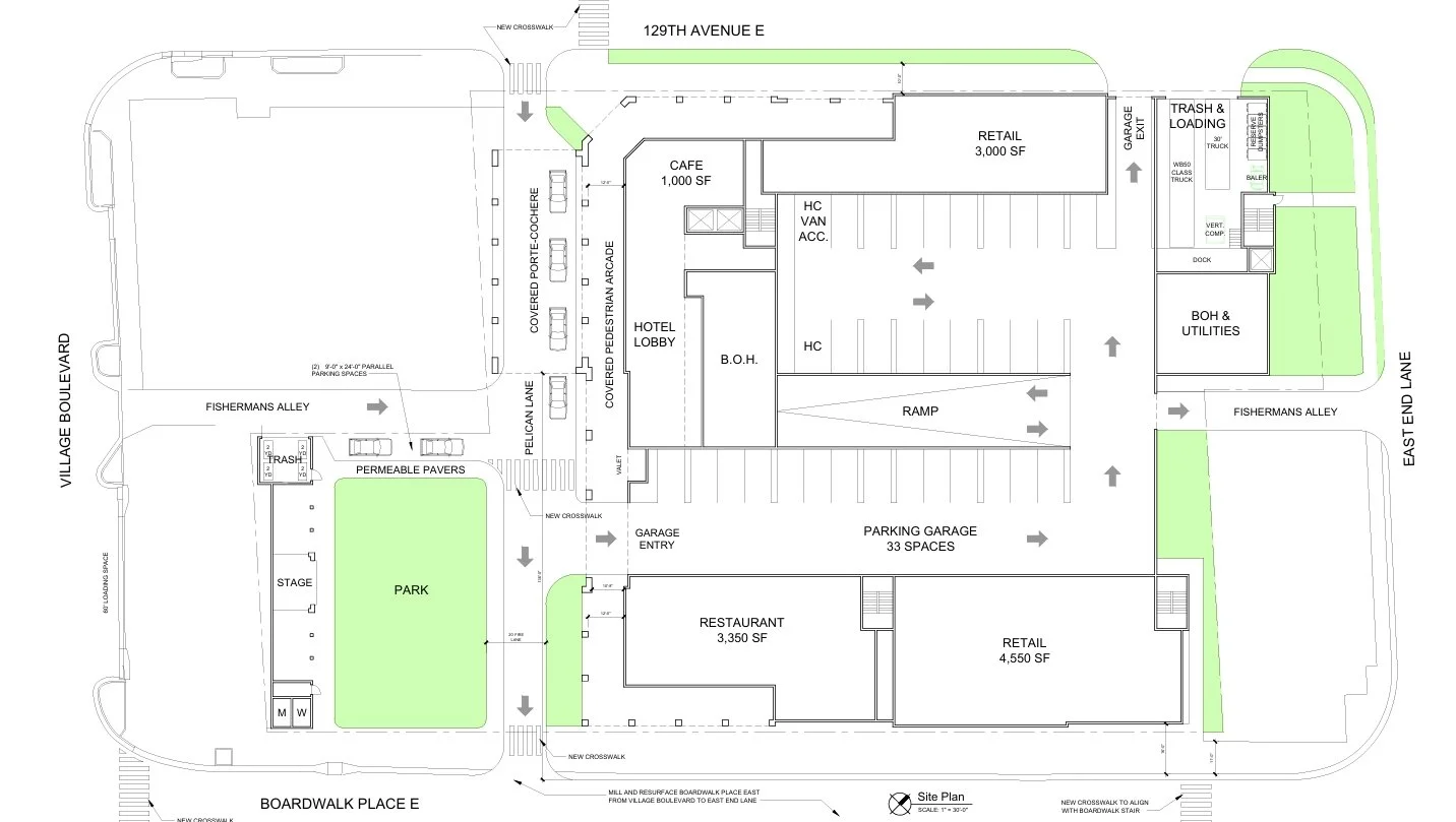
The project is planned for the southeastern corner of 129th Avenue East and Pelican Lane on a 1.5-acre parcel owned by Karns that is currently being used as a 180-space surface parking lot.
The hotel would operate under Marriott’s Tribute Portfolio, a collection of independent boutique properties designed to reflect the character and history of their surroundings.
Working with the city’s planning department, Karns and St. Petersburg-based Place Architecture revised the original design, which was announced by St. Pete Rising last July, and presented updated plans at a neighborhood meeting last November.
The initial concept called for a white, modern building with columns. The revised plan has a more traditional “fishing village” aesthetic, featuring colorful exterior paint and paneling similar to the storefronts and restaurants along the John’s Pass boardwalk.
new renderings depict a colorful exterior for the upcoming “condo-hotel” | Place Architecture
The building will function as a condo-hotel which is a hybrid between a condominium building and a hotel, with some of the units being occupied by long-term residents while others may be used as short-term rentals.
The ground floor will include 7,550 square feet of retail space, a 3,350-square-foot restaurant, a 1,000-square-foot café connected to the lobby, and a covered porte cochere with valet service.
The second, third, and fourth floors will each include 22 units in studio, one-bedroom, and two-bedroom layouts ranging from approximately 500 to 1,000 square feet.
The fifth floor will contain 18 units and a terrace.
The top floor will feature three 1,240-square-foot, three-bedroom penthouse suites, a rooftop pool overlooking the Intracoastal Waterway, and a 3,900-square-foot restaurant with an outdoor bar open to the public.
Additional amenities will include a game room, fitness center, lounge, event spaces, and multiple terraces.
Karns said the location along Gulf Boulevard in the heart of John’s Pass is a key to the project’s appeal.
The latest design plan reflects several requests from the city | Place Architecture
“The public and business owners really like it because there isn’t a hotel there right now,” Karns said, noting that many area businesses rely heavily on peak holiday seasons.
Karns purchased the property in 2021 and has since leased it to Florida Parking Co. He said he has always envisioned a hotel on the site but was waiting on a land use change for the project to make financial sense.
“I’ve been holding onto this site, waiting for the city to complete the rezoning,” Karns said. “Now that we have the Activity Center designation, we can move forward.”
In 2024, Pinellas County commissioners and the City of Madeira Beach designated 27 acres of John’s Pass Village as an Activity Center, allowing higher-density development of up to 60 residential units and 100 hotel units per acre.
“We looked at the [hotel] concept four years ago,” Tim Clemmons of Place Architecture said during the neighborhood meeting. “The city needed to go through the Activity Center process to rezone John’s Pass Village, and once that was done, we started to earnestly look at the project,”
The revised design addresses several city requests, including relocating the garage entrance to improve access for future residents and dedicating the southwest corner to public green space.
The southwestern corner of this development will be green space available to the public | Place Architecture
New renderings show a lawn bordered by sidewalks, a stage for live entertainment, and a pavilion with public restrooms. The park would be privately maintained.
City officials also asked the team to step back the building’s upper floors and better conceal the parking structure.
“Because it’s a relatively large building compared to others at John’s Pass, the city asked us to break up the massing so it feels like multiple buildings rather than one large structure,” Clemmons said.
“Additionally, we didn’t want the project to look like a parking garage, so we redesigned it to wrap the garage with hotel units,” Karns said.
Clemmons said that wrapping hotel units around the parking structure to shield it from view requires the garage to rise five stories. As a result, the team is requesting a 20-foot heigh bonus.
The proposal also calls for extending Pelican Lane to the hotel entrance and partially vacating Fisherman’s Alley.
Pelican Lane would remain privately owned but include a public easement. Fisherman’s Alley would stay open at both ends to serve existing businesses behind Walt’z Fish Shack.
Pelican Lane will be privately owned, but will have a public easement.| Place Architecture
The project is scheduled for review by the city’s Planning and Zoning Board in March, followed by a first reading before the Madeira Beach Board of Commissioners in April and a second reading in May.
Karns hopes to break ground later this year, with an anticipated opening in 2028.
Jeff Beggins of Century 21 will handle sales of the condo-hotel units.
If approved, the property would join three other Tribute Portfolio hotels in the region: The Karol Hotel in Clearwater, The Luce in St. Pete Beach, and The Westshore Grand in Tampa’s Westshore district.
