Lake Maggiore Apartments to remove community garden, downsize dog park for more parking
/The 330-unit Lake Maggiore apartments in south st. pete opened to residents in 2024 | Lake Maggiore Apartments
When the Lake Maggiore Apartments opened last year, the south St. Pete community promoted itself as a luxury, eco-conscious development with the city’s first edible urban garden.
Now, the lush garden and much of the adjacent dog park will be demolished to make way for additional parking on the western side of the 330-unit community at 825 32nd Avenue South.
St. Pete-based development firm Stoneweg U.S. has filed plans to add nearly 100 new parking spaces in response to ongoing parking issues since the property's opening.
The development currently offers 358 parking spaces, which exceeds the City of St. Pete’s required 293 spaces.
Residential concerns grew after the property manager, RangeWater Real Estate, issued a memo to residents a few months ago announcing a new parking policy.
The community garden at Lake Maggiore Apartments, which will be replaced by a new surface parking lot | Lake Maggiore Apartments
Under the new rules, which took effect May 1st, each apartment is now allowed only one registered vehicle, regardless of the number of licensed drivers or unit size. Townhome residents can still use their two-car garages.
Many residents signed their leases believing they would be allowed to have more than one car.
Guests and overflow residents must now compete for approximately 10 spaces located outside the community’s gates.
But some residents say the policy has only made things worse.
With limited guest parking and an inability to register multiple vehicles, some residents are now forced to park blocks away from their homes, raising concerns about safety and convenience.
Stoneweg offered residents incentives such as gift cards and bus passes to promote the use of public transportation and ridesharing services like Uber and Lyft.
an aerial of the lake maggiore apartments, featuring a community garden, which will be replaced by a new surface parking lot | Lake Maggiore Apartments
However, CEO of Stoneweg Patrick Richard said the complex did not distribute the bus passes or gift cards as there was a lack of interest from residents to utilize public transit options.
“When we started this project, the concept of an edible garden was inspired by European living where you have green space and utilize more public transit - we wanted to introduce this different lifestyle here,” Richard said in a conversation with St. Pete Rising.
“When we reached around 70 percent occupancy, some of the residents couldn’t find a spot for their second cars. There is a need for more parking. Resident satisfaction is a priority, and we had to rethink our options and sadly, we will have to remove the garden.”
Stoneweg plans to add 57 new parking spaces by replacing the existing garden and part of the dog park. More than 40 additional spaces will be created by paving over the grassy area along the street outside the entrance to the community.
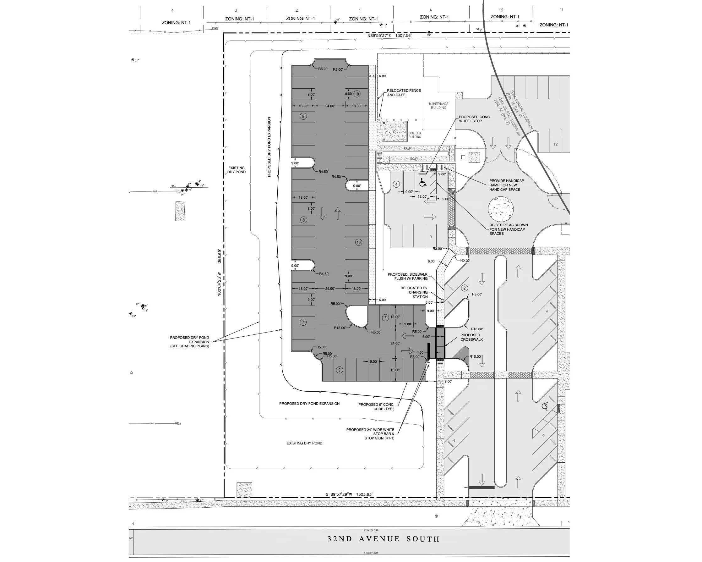
Site Plan of the existing Lake Maggiore Apartments. The outlined garden and dog park may get replaced by more surface parking | Stoneweg
The garden, designed in partnership with St. Pete-based Peas & Love Edible Gardening, was promoted as the city’s first edible and urban garden when the complex opened.
It features raised vegetable beds, edible flowers, a children’s sensory area, a meditation space, and an space for educational events.
“Unfortunately, we cannot have it all - adequate parking and a large garden,” said Richard, noting how the dog park will be significantly reduced, but will remain as an amenity.
Construction will commence in the coming weeks for the new parking beginning with the street parking located outside the community.
The 100 new parking spots are expected to be completed by the end of the year.
A site plan of the surface parking lot that would replace the garden and dog park on the west side of the Lake Maggiore Apartments | Stoneweg
“This parking issue has slowed our lease activity. Today, we are over 80 percent occupancy and expect to reach full occupancy after adding the new parking,” Richard said.
Lake Maggiore Apartments opened for move-ins in 2024 and was built on a site previously occupied by a mobile home park.
Since opening, the community has received two Green Globes Certifications for sustainable features including a net-zero clubhouse, energy-efficient appliances, water conservation measures, and electric vehicle charging stations.
In May, Stoneweg listed the property for sale, with JLL’s Frank Carriera overseeing the marketing.
The parking project will happen regardless of a potential sale, Richard said.
While the complex marks the company’s first residential development in St. Pete, Stoneweg is also spearheading the nearby redevelopment of Coquina Key Plaza into a mixed-use center with more than 450 apartments, including workforce housing. The plaza has been razed, but a groundbreaking date for the redevelopment has not been announced yet.
